Jump to content

NEDRE LANGGATE 20

Nytt inspirerende interiørprosjekt i hjertet av Tønsberg

Pgno micasa web DSCF5048 8959bab467a44dfd4688020ad8a7170c

MICASA , et av Vestfolds ledende eiendomsselskaper, har flyttet sitt hovedkontor fra Stasjonen til Tønsberg Brygge. Spir fikk oppgaven med utforming av selskapets nye lokalene og er glad for å dele det som er ferdigstilt så langt.

Foto: PG

Nedre langg 20 cut 8959bab467a44dfd4688020ad8a7170c

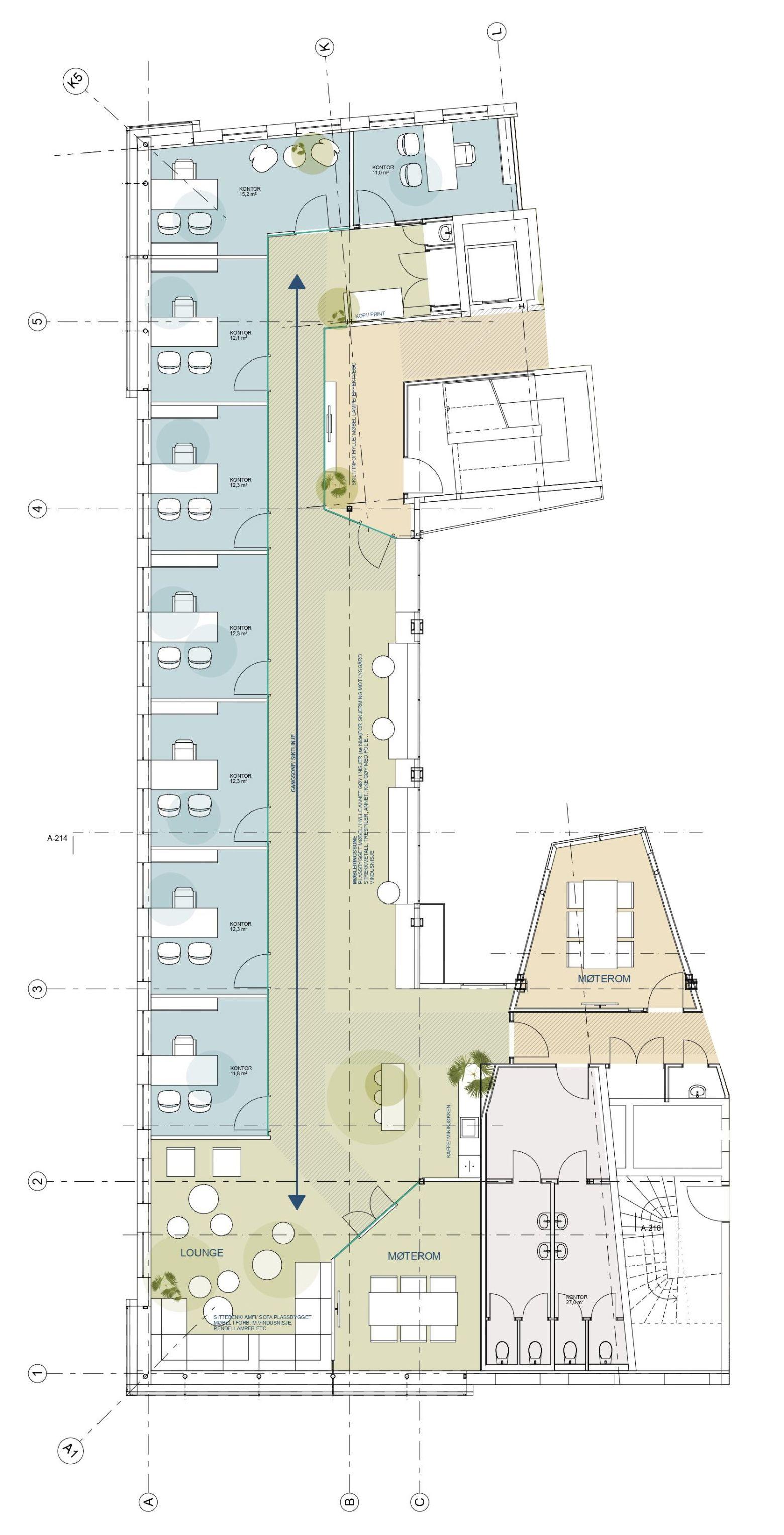
Micasas lokaler ligger med langstrakt fasade ut mot Brygga og den tradisjonelle bebyggelsen. De har også fasade mot en stor åpen lysgård i kjernen av bygget. Dette gir spennende siktlinjer og flotte lysforhold.

“Beliggenheten med nærheten til byfjorden var inspirasjonen til interiørkonseptet og paletten i lokalene. Lokalene har en dempet og lun atmosfære med moderne, rause arealer og oppgraderte innredningsløsninger som kjøkken og loungeområde".

- Å. Engeseth, interiørarkitekt SPIR

Pgno micasa web DSCF5058 e63bd810c6cc3568f7a2798e06e97da5

Materialpaletten har referanse til farger og elementer i de omkringliggende omgivelsene. Det er valgt solide produkter (materialer, overflater og møbler) med tanke på varighet og bærekraft.

Materialpalett april 22 b10 8959bab467a44dfd4688020ad8a7170c
Pgno micasa web DSCF5040 8959bab467a44dfd4688020ad8a7170c
Pgno micasa web DSCF5036 8959bab467a44dfd4688020ad8a7170c
Pgno micasa web DSCF5045 8959bab467a44dfd4688020ad8a7170c

Adresse

Nedre Langgate 20, Tønsberg

Utbygger

Micasa

Areal

300 m²

Byggeår

2022

Prosjekt

NEDRE LANGGATE 20

Kontaktperson

Åshild Engeseth | ashild@spir.no | 90 96 87 63

Tønsberg

Tollbodgaten 22, 2. etg.
3111 Tønsberg

Tlf: 33 38 18 80
E-post: post@spir.no
Org. nr: 920 420 877

Jobb hos oss

Vi er alltid på jakt etter kreative og dyktige medarbeidere.

Ta gjerne kontakt om du er interessert i å jobbe sammen med oss.

Personvern Cookies

Work by