Jump to content

SKIPPERGATA

Transformasjon av tidligere skolebygg til bolig og næring

Fotomontasje 8959bab467a44dfd4688020ad8a7170c

Horten har en tydelig kvartalsstruktur med gateløp fra sentrum ned mot havna og Strandpromenaden.

Tidligere Horten videregående skole ligger tilbaketrukket fra gaten. Ved transformasjon av skolebygningene til leiligheter, ble gateløpet forsterket ved å trekke bygningsvolumene helt fram med fasade parallelt med gateløpet.

Prosjektet viderefører fasader og bygningsvolum til ny planlagt bebyggelse i Horten havn. Dette forsterker aksen fra sentrum ned til sjø.

Eksisterende bebyggelse gjennomgår en transformasjon fra skole til boliger med enkle lesbare grep. Ved å endre funksjon for eksisterende bygg, framfor å bygge nytt, oppnås en bærekraftig løsning. Næringsbygget planlegges med en kombinasjon av grønne tak og mulighet for solcellepanel. Dette styrker Hortens visjoner for fremtidig sentrumsutvikling og byplanlegging.

  • Tekst konsept diagram 8959bab467a44dfd4688020ad8a7170c
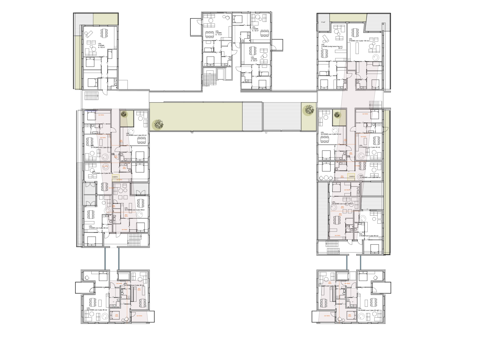
  • Plan 5 Etasje 8959bab467a44dfd4688020ad8a7170c
  • Naeringsdel planskisse 8959bab467a44dfd4688020ad8a7170c
  • Diagram 2 8959bab467a44dfd4688020ad8a7170c

Vernede eiketrær er med på å definere formen på næringsbygget. Løsningen ble å benytte seg av trærnes hensynssoner som premissgiver, som gir et spennende uterom. Dette er en forlengelse av parken Lystlunden og forener bolig og næring sammen rundt et åpent og inviterende gårdstun.

Det eksisterende grøntarealet mot Skippergata foran skolen opprettholdes og forsterkes etter transformasjon til bolig. Dette er et viktig element for å skape variasjon i livet på bakken.

Skisse indre gaardsrom 8959bab467a44dfd4688020ad8a7170c
Modell fra nordvest 8959bab467a44dfd4688020ad8a7170c

Adresse

Horten

Tiltakshaver

WA Gruppen AS

Prosjekt

Skippergata

Kontaktperson

Magnus Songe-Møller | magnus@spir.no | 91 32 55 66

Tønsberg

Tollbodgaten 22, 2. etg.
3111 Tønsberg

Tlf: 33 38 18 80
E-post: post@spir.no
Org. nr: 920 420 877

Jobb hos oss

Vi er alltid på jakt etter kreative og dyktige medarbeidere.

Ta gjerne kontakt om du er interessert i å jobbe sammen med oss.

Personvern Cookies

Work by