Jump to content

REGULERING SCANROPE NORD

SCANROPE NORD – verftsområde langs kanalen i Tønsberg

Landskapsplan Kopii11 8959bab467a44dfd4688020ad8a7170c

Spir Arkitekter har utarbeidet planforslaget for detaljregulering av Scanrope Nord i samarbeid med Format eiendom AS, og på vegne av Kanalen Nord AS. Illustrasjonsplan og forslag til opparbeidelse av uteområdene ble utarbeidet av GG Landskap AS.

SCNORD fugl ost 8959bab467a44dfd4688020ad8a7170c
Fugleperspektiv fra øst
0011 8959bab467a44dfd4688020ad8a7170c

Planområdet er på litt over 6 daa. og omfatter ca. 26 boenheter med parkering og uteareal. Planforslaget omfatter videre en offentlig parkering, offentlig adkomstvei med fortau frem til eiendommen til Scanrope, en ny park "Kanalparken" med tilhørende offentlig strandpromenade og bryggevandring. I planen inngår småbåthavna som brukes av Kaldnes båtforening.

På området har det tidligere vært skipsverft og mekanisk industri. Skipsverftet Aktieselskabet Kaldnæs Patentslip og Mekaniske værksted ble stiftet den 1. mai 1899. Bedriften skiftet navn til A/S Kaldnæs Mekaniske Verksted i 1916, og det tradisjonsrike verftet ble drevet frem til 1984.
 

  • Image 000
  • Image 002 8959bab467a44dfd4688020ad8a7170c

Historiske foto: "Kaldnes et skipsverft", E. Jacobsen

 

Detaljreguleringen beskriver et prosjekt med historisk forankring, som symboliserer starten på en fremtidig utbygging mellom gangbrua og kystkultursenteret langs Kanalen i Tønsberg. Bebyggelsen er tilpasset og planlagt i sammenheng med byparken, og vil være starten på realisering av en sammenhengende promenade på vestsiden av kanalen. Denne viktige etappen vil gi byen og beboere vest for Solveien tilgang til park, strand, sjøkant og promenade.

Taklandskapet og silhuetten av prosjektet, sett sammen med bakenforliggende bygg, gir assosiasjoner til tradisjonell historisk bryggearkitektur. Prosjektet får en variert og oppdelt karakter, sett fra kanalen og sett fra bakenforliggende bebyggelse.

SCNORD fasader 8959bab467a44dfd4688020ad8a7170c

Innenfor området planlegges det to boligbygg over en felles parkeringsetasje. Boligbyggene er igjen brutt opp i fem bygningsvolum med varierte utforming og ulik gesims- og mønehøyde. Prosjektets ansikt og uttrykk mot Kanalen har hatt spesielt fokus. Inndeling av byggene i "gårder" lagt inntil hverandre sammen med byggenes oppdelte takflater med møneretning vinkelrett mot Kanalen, bidrar til å bryte ned inntrykket av bygningsmassens totale volum.

SCNORD fugl vest 8959bab467a44dfd4688020ad8a7170c
Fugleperspektiv fra vest

MILJØPROFIL

Kanalparken er gitt en bærekraftprofil med redusert CO2 - avtrykk. Utbyggers mål er å redusere CO2 utslippet med mellom 20 % og 40 % i tillegg til redusert energiforbruk med ca. 25% ift. TEK17. Utbygger har satt som målsetning ifm. rammesøknaden å utarbeide et helhetlig dokumenterbart livsløpsbasert klimagassregnskap.

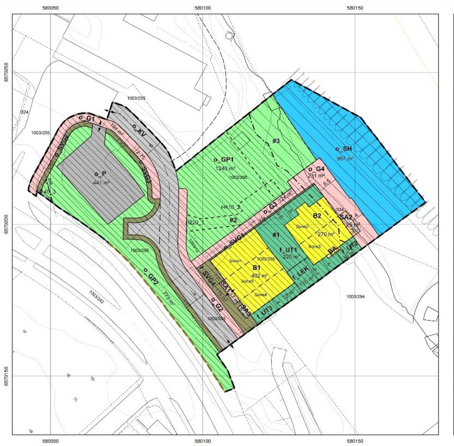
Scanrope Nord illustrasjonsplan 8959bab467a44dfd4688020ad8a7170c
Illustrasjonsplan: GG Landskap AS

Adresse

Kanalen, Tønsberg

Tiltakshaver

Kanalen Nord AS og Format Eiendom AS

Areal

Over 6 daa.

Byggeår

Detaljplan vedtatt september 2021

Prosjekt

REGULERING SCANROPE NORD

Kontaktperson

Kristian Ottesen | kristian@spir.no | 95 04 40 63

Tønsberg

Tollbodgaten 22, 2. etg.
3111 Tønsberg

Tlf: 33 38 18 80
E-post: post@spir.no
Org. nr: 920 420 877

Jobb hos oss

Vi er alltid på jakt etter kreative og dyktige medarbeidere.

Ta gjerne kontakt om du er interessert i å jobbe sammen med oss.

Personvern Cookies

Work by